A competition-winning corner apartment design with rooftop garden, innovative materials, and relaxed homes that connect seamlessly to generous balconies.
Corner Lot Apartments 02 by Spacecraft Architects is a 4-6 storey shop-top housing building with options for up to 2 commercial tenancies on the ground floor. Designed for corner infill sites in town centres and residential neighbourhoods, the building addresses both primary and secondary street frontages. Its contemporary design uses innovative materials and flashes of colour to create a fresh, modern aesthetic.
The apartments range from studios to 1, 2, 3 and 4 bedroom homes. Each dwelling includes generous balconies connected to living areas for a relaxed indoor and outdoor lifestyle. Front porches provide transitional spaces between the circulation balcony and the home – ideal for informal overflow space for surfboards, plants, or other personal items. A strong connection to the outdoors is central to the building’s design. A deep roof overhang sheltered access galleries keep the building cool, and weather protected. Tall planting in the courtyard garden creates a sensory barrier to neighbouring properties. A communal rooftop provides shared amenities for residents.
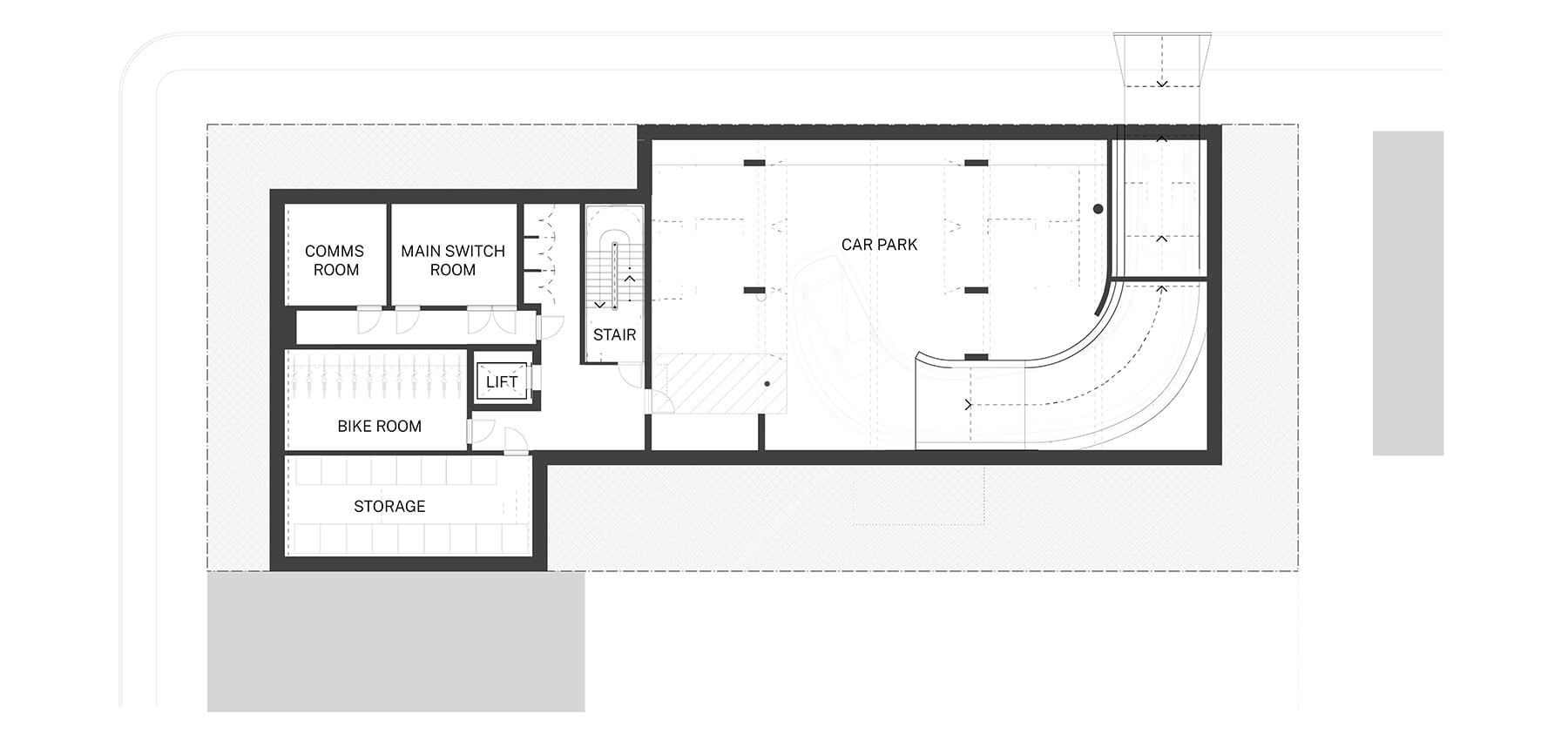
The layout is highly adaptable. It can be configured as a 6 storey shop-top housing development or scaled down to a 4 storey residential flat building. Ground floor options allow fully commercial, mixed use, or entirely residential arrangements. Parking options include basement or on-grade parking. The building can accommodate sites with slopes between 0 – 4m upslope, and lot dimensions between 17.9 – 19.8m wide.
Download to preview:
Key metrics
- Number of dwellings 10-24
- Bedrooms per dwelling0-4
- Gross Floor Area (GFA) 753-2883 m2
- Efficiency (NSA:GFA)93-95%
- Parking spaces per building 6-11
- zoom_in_map Minimum lot area 614-1287 m²
- Minimum lot width 17.9-19.8 m
- Number of storeys 4-6
- Floor-Space Ratio (FSR) 1.23:1-2.52:1
- Livability rating (ABCB)Standard
- Site gradient front to back0-4 m
Key metrics
Floor plans
Explore the floor plan layouts. Refer to the pattern pack for more floor plan variations to suit your preferences.
Fixed and flexible features
Fixed features must be included in your planning application. Flexible features can be modified within agreed parameters.
The facade is contemporary and playful, combining a robust, neutral material like brick, pre-cast concrete or metal sheeting, with bright pops of colour.
Low walls for seating, letterboxes and a clear view to the bio-diverse courtyard garden create a relaxed and permeable entry.
The open gallery circulation with individual front porches provides a sense of arrival and visually connect residents to the natural environment.
Spacious living spaces flow onto wide private verandahs to create comfortable, healthy homes that are easy to live in.
The shaded communal open space on the rooftop (or upper level if the building is stepped) provides a sociable space for residents.
Three ground floor options include a full commercial tenancy or partial commercial tenancy (with optional awning) or a full residential layout.
This pattern can be a 4-storey apartment building, 6-storey shop-top housing or have stepped levels between 4, 5 and 6 storeys.
While the base pattern is a rectilinear plan, key flex points in the plan mean the building can be angled to fit on irregularly shaped sites.
Two parking options including basement and on-grade parking to suit the walkable, town centre location likely for this typology.
Specific apartment types associated with the corner, long and short sides of the building are readily adapted to minimum lots widths between 17.9 m and 19.8 m.
-
Fixed features
-
Playful materials
The facade is contemporary and playful, combining a robust, neutral material like brick, pre-cast concrete or metal sheeting, with bright pops of colour.
-
Relaxed and permeable front entry
Low walls for seating, letterboxes and a clear view to the bio-diverse courtyard garden create a relaxed and permeable entry.
-
Gallery access to dwellings
The open gallery circulation with individual front porches provides a sense of arrival and visually connect residents to the natural environment.
-
Comfortable interiors
Spacious living spaces flow onto wide private verandahs to create comfortable, healthy homes that are easy to live in.
-
Rooftop communal open space
The shaded communal open space on the rooftop (or upper level if the building is stepped) provides a sociable space for residents.
-
Playful materials
-
Flexible features
-
Commercial ground floor
Three ground floor options include a full commercial tenancy or partial commercial tenancy (with optional awning) or a full residential layout.
-
Height and building type
This pattern can be a 4-storey apartment building, 6-storey shop-top housing or have stepped levels between 4, 5 and 6 storeys.
-
Corner angle
While the base pattern is a rectilinear plan, key flex points in the plan mean the building can be angled to fit on irregularly shaped sites.
-
Parking options
Two parking options including basement and on-grade parking to suit the walkable, town centre location likely for this typology.
-
Lot size and width options
Specific apartment types associated with the corner, long and short sides of the building are readily adapted to minimum lots widths between 17.9 m and 19.8 m.
-
Commercial ground floor
Materials and character
The design features a playful, expressive facade that combines bold, durable materials with vibrant colour accents. It is designed for traditional construction methods but can also use innovative approaches such as pre-cast concrete panels or cross-laminated timber.
Facade details, including balustrades, can be adapted to suit the surrounding context or user preferences. Colour is used around main entries and commercial areas to create a welcoming feel. Ground-level tiled wall surfaces provide a tactile, easy-to-clean finish. The communal rooftop features a bright awning, creating a fresh, contemporary space for residents to relax and socialise.
Vertically oriented metal cladding in a neutral colour, complemented by colourful accent details.
Pale (blonde), orange, or red clay brickwork paired with painted finishes for added warmth and texture.
Pre-cast concrete with either a textured or coloured finish, enhanced by vibrant colour highlights.
Ground floor is clad in neutral square tiles in all material palettes.
About the architect
Spacecraft Architects is an architecture practice formed in 2012 by Caroline Robertson and Tim Gittos, located in Wellington, New Zealand. They bring design experience in residential, commercial and public architecture. Their hands-on experience in furniture building and residential construction gives them an in-depth understanding of how to put things together. Environmental responsibility underpins their work, along with a commitment to creating spaces that are a delight to experience.
For more of Spacecraft Architects' work, visit Spacecraft Architects.
Getting into the detail
Learn more about turning your pattern book project into reality with guidance for designing your landscape and gaining fast-track planning approval.
Complement your proposal with beautiful, resilient, landscape designs.
All patterns are eligible for a fast-tracked planning assessment pathway.
Preview or purchase this pattern
View the pattern drawings at no cost to help you select the most suitable pattern for your project.
To use the pattern for your planning application, you must purchase the full suite of documents, accept the terms and conditions and reference your unique identification number. When you pay the fee, you will receive technical drawings in PDF and DWG formats, an editable design verification statement and your unique identification number.
- Corner Lot Apartments 02 by Spacecraft Architects – Part 1 (PDF, 26 MB)
- Corner Lot Apartments 02 by Spacecraft Architects – Part 2 (PDF, 22 MB)
- Corner Lot Apartments 02 by Spacecraft Architects – Part 3 (PDF, 27.9 MB)
- Terms and Conditions for the use of patterns
- NSW Housing Pattern Book Design Verification Statement Template (PDF, 236KB)