A bold and sculptural apartment building with generous light-filled apartments and sweeping curved balconies that dissolve the threshold between inside and outside.
Large Lot Apartments 01 by Silvester Fuller is a 4- to 6-storey apartment building containing generously sized one-, 2-, and 3-bedroom dwellings. Designed as a genuine house-alternative, this pattern is well-suited to greenfield residential neighbourhoods. The building balances individual privacy with opportunities for community life, offering a robust and adaptable model for multi-residential housing.
The design’s layered approach transitions from public to private spaces and from exterior to interior, creating a clear and intuitive layout. A continuous wraparound balcony provides generous outdoor frontage for every apartment, enhancing light, ventilation, views, and internal amenity. Doors open onto the balcony, strengthening the connection to the outdoors. Community and amenity are embedded throughout, supporting social interaction and everyday wellbeing. An open circulation stair provides a welcoming vertical link between levels, while playful balcony blinkers add lively, expressive character to the facade.
The layout is functional and flexible. The building can be scaled from 4 to 6 storeys and supports a range of parking options, including basement or on-grade parking. It accommodates slopes of 0–4 m, both upslope and downslope. The rational grid structure supports efficient construction and enables different apartment mixes to suit diverse households, including multigenerational living.
Download to preview the Large Lot Apartments 01 (ZIP, 67.6 MB).
Key metrics
- Number of dwellings 20-40
- Bedrooms per dwelling1-3
- Gross Floor Area (GFA) 2148-3555 m2
- Efficiency (NSA:GFA)78-83%
- Parking spaces per building 13-53
- zoom_in_map Minimum lot area 1610-2338 m²
- Minimum lot width 49.1-65.1 m
- Number of storeys 4-6
- Floor-Space Ratio (FSR) 1.3:1-2.1:1
- Livability rating (ABCB)Beyond minimum
- Site gradient front to back0-4 m
Key metrics
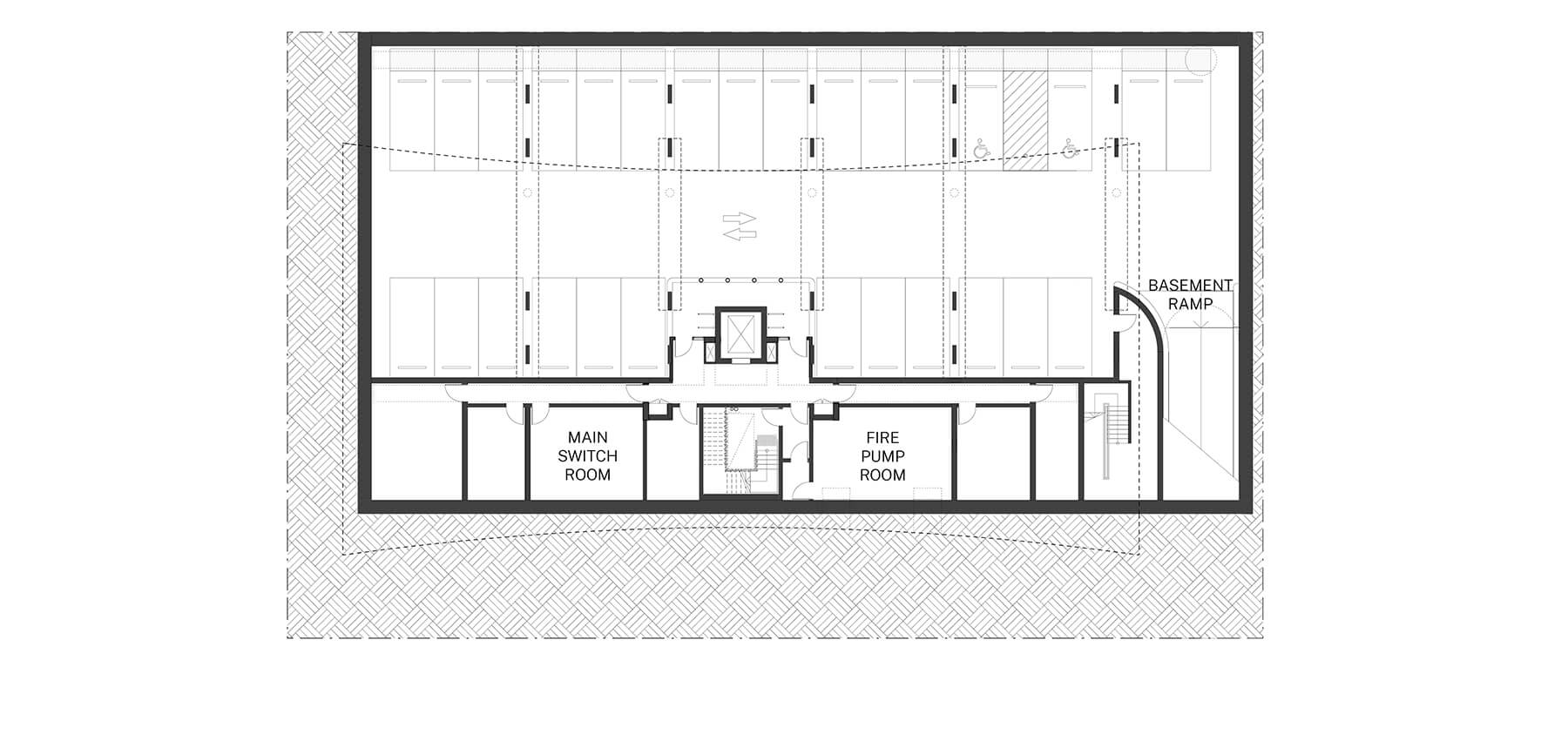
Floor plans
Explore the floor plan layouts. Refer to the pattern pack for more floor plan variations to suit your preferences.
Fixed and flexible features
Fixed features must be included in your planning application. Flexible features can be modified within agreed parameters.
Balconies wrap around the building in a concave shape to capture sunlight, improve ventilation and connect to the outdoors.
The floorplate is organised with heavy components (core, circulation) in the centre and light, airy components (dwellings, balconies) at the edges.
Round balcony ‘blinker’ panels introduce a playful façade element and ensure privacy between the balcony of each apartment.
Generous apartment layouts are complemented by the corner living spaces in each dwelling that improve outlook and provide fresh air.
Communal open space on ground floor and (optional) space on alternate apartment floor levels, represent 11% of the overall site area.
This pattern can be delivered as a 4- to 6-storey building and can be mirrored or rotated to suit a range of greenfield settings.
Various apartment types in the smart floorplate are interchangeable, enabling the user to alter the mix to suit their needs.
The outer layer of the façade can include adjustable screens that can be ‘tuned’ to different climate conditions.
Two parking options are available-basement or on-grade parking.
Choice of 4 material palettes and 3 facade surfaces provides a great diversity of choice to adapt the building to its context.
-
Fixed features
-
Friendly edges
Balconies wrap around the building in a concave shape to capture sunlight, improve ventilation and connect to the outdoors.
-
Layered living
The floorplate is organised with heavy components (core, circulation) in the centre and light, airy components (dwellings, balconies) at the edges.
-
Balcony blinkers
Round balcony ‘blinker’ panels introduce a playful façade element and ensure privacy between the balcony of each apartment.
-
Spacious interiors and corners
Generous apartment layouts are complemented by the corner living spaces in each dwelling that improve outlook and provide fresh air.
-
Communal open space
Communal open space on ground floor and (optional) space on alternate apartment floor levels, represent 11% of the overall site area.
-
Friendly edges
-
Flexible features
-
Number of storeys
This pattern can be delivered as a 4- to 6-storey building and can be mirrored or rotated to suit a range of greenfield settings.
-
Diverse housing mix
Various apartment types in the smart floorplate are interchangeable, enabling the user to alter the mix to suit their needs.
-
Operable sunshades
The outer layer of the façade can include adjustable screens that can be ‘tuned’ to different climate conditions.
-
Parking
Two parking options are available-basement or on-grade parking.
-
Material type and colour
Choice of 4 material palettes and 3 facade surfaces provides a great diversity of choice to adapt the building to its context.
-
Number of storeys
Materials and character
The building is defined by its layered facade and distinctive wraparound curved balconies. Four colour palettes, each with a variety of materials and finishes, allow the design to adapt to different neighbourhood contexts across NSW.
The layered living strategy, detailed in the pattern drawing pack, guides material selection across 4 key building layers: band, balcony, interior, and connector. Curved 'blinkers' provide separation between the private outdoor spaces of each apartment, while balcony and blinker details contribute to the building’s expressive character.
Warm white painted concrete, face brick or bagged brick, paired with bronze balcony blinkers.
Dark grey painted concrete, face brick or bagged brick, with bronze balcony blinkers.
Light terracotta painted concrete, face brick or bagged brick, complemented by copper balcony blinkers.
Light sage green painted concrete, face brick or bagged brick, with matching balcony blinkers.
About the architect
Silvester Fuller is an architecture practice whose work spans a broad range of sectors including public, residential, commercial, hospitality and education. The practice approaches each project as a unique challenge and focuses on creating environmentally, socially and economically sustainable spaces for living.
For more of Silvester Fuller’s work, visit Silvester Fuller.
Getting into the detail
Learn more about turning your pattern book project into reality with guidance for designing your landscape and gaining fast-track planning approval.
Complement your proposal with beautiful, resilient, landscape designs.
All patterns are eligible for a fast-tracked planning assessment pathway.
Preview or purchase this pattern
View the pattern drawings at no cost to help you select the most suitable pattern for your project.
To use the pattern for your planning application, you must purchase the full suite of documents, accept the terms and conditions and reference your unique identification number. When you pay the fee, you will receive technical drawings in PDF and DWG formats, an editable design verification statement and your unique identification number.