A timeless, compact design that integrates Art Deco sensibilities with the conveniences of modern living.
Small Lot Apartments 01 by Collins and Turner is a 3- to 4-storey apartment building for compact sites. It reinterprets the character of the classic Art Deco walk-up, offering a timeless brick facade that can fit comfortably within many NSW neighbourhoods.
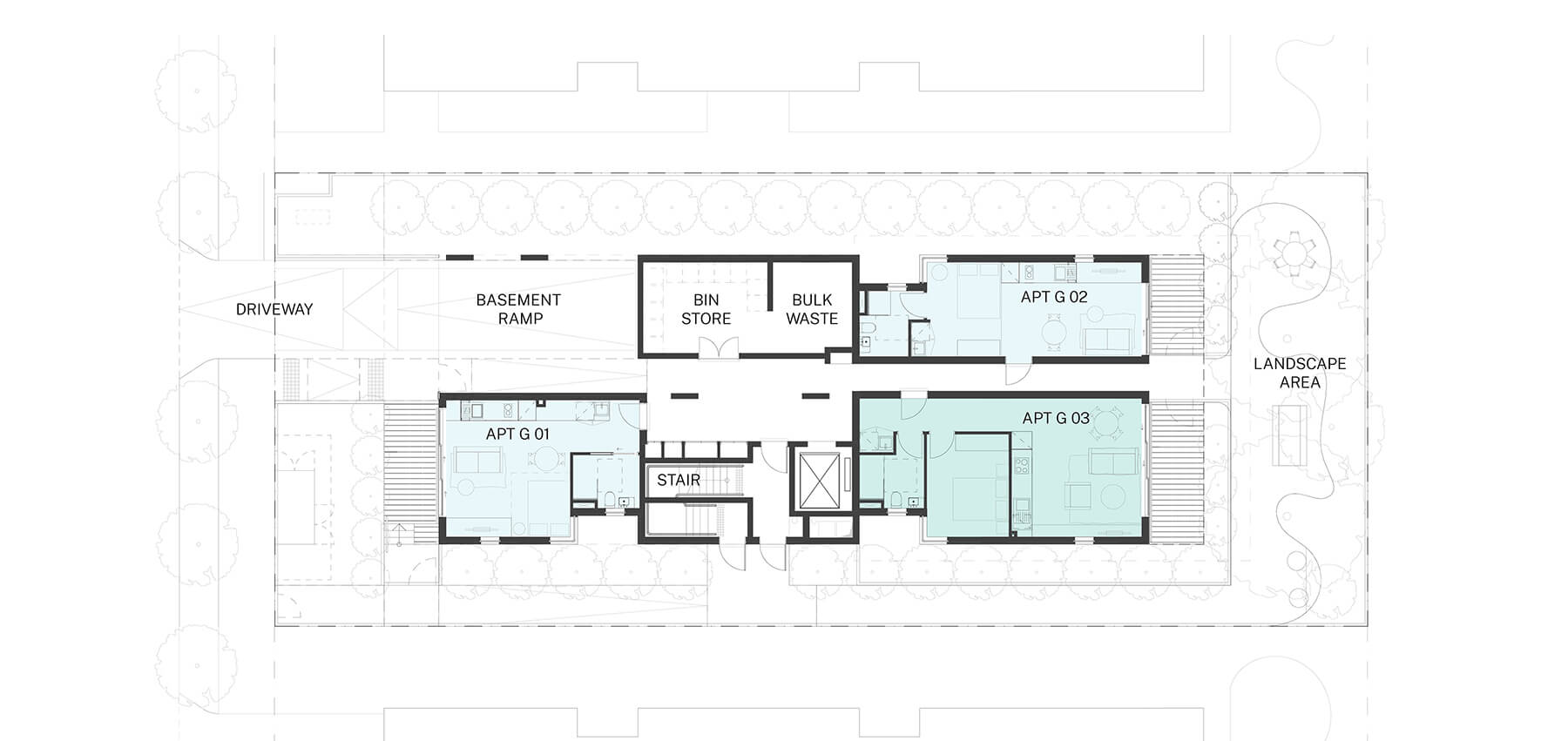
The design includes a mix of studios, one-, 2-, 3- and 4-bedroom apartments, many with a flexible room that can be used as a study, nursery or playroom. Apartments are arranged on the building corners to maximise light-filled interiors, cross- ventilation, and leafy views. With only 3–4 apartments per floor, the building supports a close-knit community while providing private balconies for each home and shared open spaces at ground level and on the rooftop.
The pattern is efficient and adaptable, making it suitable for a range of sites. It can be configured for 3 or 4 storeys, with options for basement, or on-grade parking. It works on sites with slight slopes (up to one metre) and can adapt to sites with a minimum width between 13 m and 16.6 m. It can be adapted to a 0 m, 1.5 m or 3 m side-setback arrangement depending on the site width, location and number of storeys desired.
Download to preview Small Lot Apartments 01 (ZIP, 41.9 MB).
Key metrics
- Number of dwellings 7-13
- Bedrooms per dwellingStudio-4
- Gross Floor Area (GFA) 441-1350 m2
- Efficiency (NSA:GFA)86-97%
- Parking spaces per building 4-8
- zoom_in_map Minimum lot area 520-904 m²
- Minimum lot width 13-16.6 m
- Number of storeys 3-4
- Floor-Space Ratio (FSR) 1.09:1-1.49:1
- Livability rating (ABCB)Standard
- Site gradient front to back0-1 m
Key metrics
Floor plans
Explore the floor plan layouts. Refer to the pattern pack for more floor plan variations to suit your preferences.
Fixed and flexible features
Fixed features must be included in your planning application. Flexible features can be modified within agreed parameters.
A refined brick material palette and compact form referencing traditional Art Deco apartments.
A gracious front entry and central stair provides a welcoming place of arrival and encourages neighbourly interaction.
The general arrangement of this pattern, including circulation and dwelling configuration is fixed to optimise efficiency.
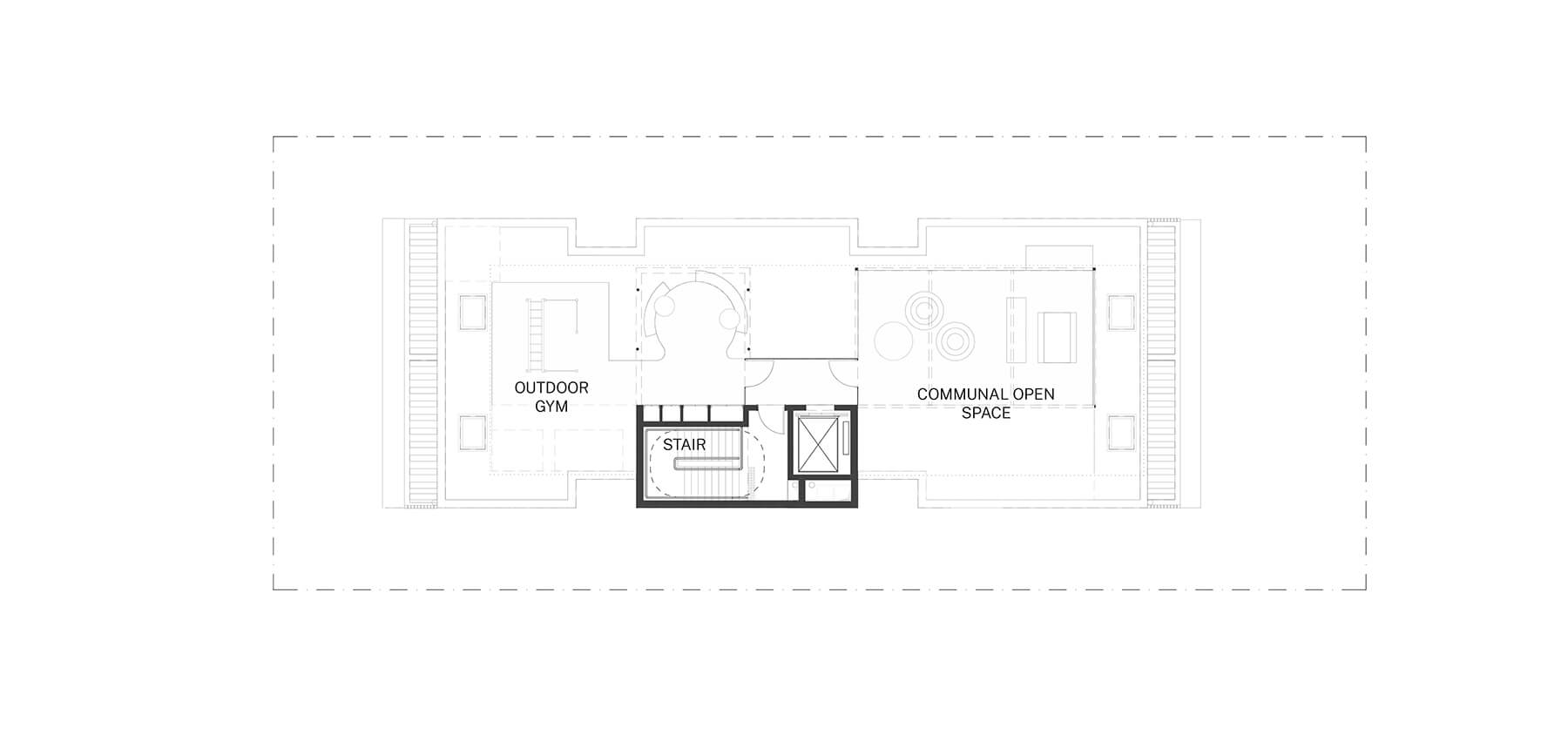
Twenty-eight per cent of the site area is dedicated to communal space supporting indoor outdoor living on the ground floor and on the rooftop.
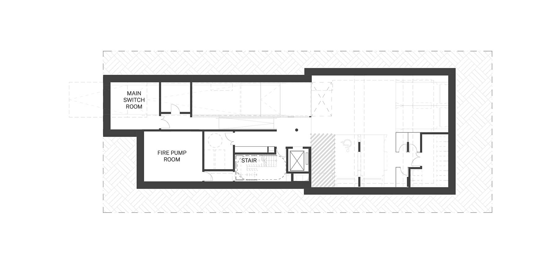
Waste rooms sized for weekly kerbside collection and provision for kiosk substation and fire pump room if required.
Choose between rectilinear or curved facade details, alongside 3 brick material palette options.
Suitable for 3 storeys on a minimum 13.6 m-wide lot with 1.5 m side setback, or 4 storeys on a minimum 16.6 m-wide site with 3 m side setback.
Basement, or on-grade parking options available.
Zero metre side setback option makes the design adaptable to sites between 13 m and 16 m wide at 3 or 4 storeys. Adaptable to 0 m–1 m upslope and downslope.
Select apartments can meet Australian Standard 4299-1995 – Adaptable housing to support aging in place.
-
Fixed features
-
Brick palette and formal style
A refined brick material palette and compact form referencing traditional Art Deco apartments.
-
Welcoming entry
A gracious front entry and central stair provides a welcoming place of arrival and encourages neighbourly interaction.
-
Efficient, fixed-apartment mix
The general arrangement of this pattern, including circulation and dwelling configuration is fixed to optimise efficiency.
-
Communal open space
Twenty-eight per cent of the site area is dedicated to communal space supporting indoor outdoor living on the ground floor and on the rooftop.
-
Services and waste provisions
Waste rooms sized for weekly kerbside collection and provision for kiosk substation and fire pump room if required.
-
Brick palette and formal style
-
Flexible features
-
Facade design
Choose between rectilinear or curved facade details, alongside 3 brick material palette options.
-
Number of storeys
Suitable for 3 storeys on a minimum 13.6 m-wide lot with 1.5 m side setback, or 4 storeys on a minimum 16.6 m-wide site with 3 m side setback.
-
Parking options
Basement, or on-grade parking options available.
-
Side setback and slope
Zero metre side setback option makes the design adaptable to sites between 13 m and 16 m wide at 3 or 4 storeys. Adaptable to 0 m–1 m upslope and downslope.
-
Adaptable interiors
Select apartments can meet Australian Standard 4299-1995 – Adaptable housing to support aging in place.
-
Facade design
Materials and character
The primary cladding is face brick, complemented by compressed fibre cement sheeting. 3 brick colour options and interchangeable facade details allow the building to suit a range of settings across NSW.
The 2 primary materials are blonde brick and a CFC cladding.
The 2 primary materials are light brown brick and a CFC cladding.
The 2 primary materials are dark brown brick and a CFC cladding.
Metal balustrades, screens, awnings and window frames finished in similar tones to the primary materials.
About the architect
Collins and Turner is an award-winning multidisciplinary design studio that has delivered residential, public and commercial buildings across Australia. Their projects have a broad range of styles that reflect their clients’ needs and the settings the buildings are situated in. They take an honest and restrained approach to materials.
For more of Collins and Turners’ work, visit Collins and Turner.
Getting into the detail
Learn more about turning your pattern book project into reality with supporting guidance for designing your landscape and gaining fast-track planning approval.
Complement your proposal with beautiful, resilient, landscape designs.
All patterns are eligible for a fast-tracked planning assessment pathway.
Preview or purchase this pattern
View the pattern drawings at no cost to help you select the most suitable pattern for your project.
To use the pattern for your planning application, you must purchase the full suite of documents, accept the terms and conditions and reference your unique identification number. When you pay the fee, you will receive technical drawings in PDF and DWG formats, a BASIX information sheet for this pattern, an editable design verification statement and your unique identification number.