Small Lot Apartments 04 by Neeson Murcutt Neille

Residential flat building at 4–5 storeys with dwellings ranging from studios to 3 bedrooms.

Street view of 5 storey apartment with people interacting on each storey and cars on the road in the foreground.

A refined, efficiently-planned apartment building with a ‘breezy core’ and common space that fits harmoniously into existing residential neighbourhoods.

Small Lot Apartments 04 by Neeson Murcutt Neille is a 4- to 5-storey residential building with dwellings ranging from studios to 3-bedroom apartments. Carefully scaled, the building fits 5 storeys into a typical 4-storey envelope, making it an ideal option for infill development while maintaining a neighbourly presence. The building’s character is defined by grounded, durable materials, complemented by bright awnings, painted soffits, and a matching front path that adds colour and charm to the streetscape.

The design features a smart, efficient floorplate that allows flexible apartment layouts on each level. Many homes include a flexible room that can serve as extra living space, a study, or a playroom. Apartments are arranged around a ‘breezy’ open core and covered walkways on each level that are open to the outdoors, promoting airflow and creating informal spaces for neighbours to meet. The design also includes both private and communal gardens.

This pattern is functional and adaptable. It accommodates site slopes 0–2 m upslope and downslope front-to-back and suits narrower or longer lots with minimum widths between 16.5 m and 20.4 m. Flexible parking options include basement or on-grade parking.

Download to preview Small Lot Apartments 04 (ZIP, 37.7 MB).

Purchase the pattern design

Key metrics

Each pattern provides a design for low- and mid-rise (LMR) housing areas with some of the designs providing options to suit non-LMR housing areas. The key metrics reflect the compact designs for low-rise patterns and the range of options for mid-rise patterns.
  • Number of dwellings 6-21
  • Bedrooms per dwellingStudio-3
  • Gross Floor Area (GFA) 779-1555 m2
  • Efficiency (NSA:GFA)72-81%
  • Parking spaces per building 1-7
  • zoom_in_map Minimum lot area 600-1028 m²
  • Minimum lot width 16.5-20.4 m
  • Number of storeys 4-5
  • Floor-Space Ratio (FSR) 1.38:1-1.79:1
  • Livability rating (ABCB)Standard
  • Site gradient front to back0-2 m

Key metrics

Each pattern provides a design for low- and mid-rise (LMR) housing areas with some of the designs providing options to suit non-LMR housing areas. The key metrics reflect the compact designs for low-rise patterns and the range of options for mid-rise patterns.

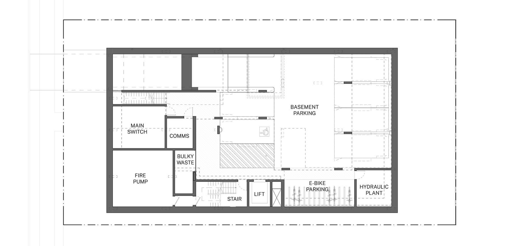
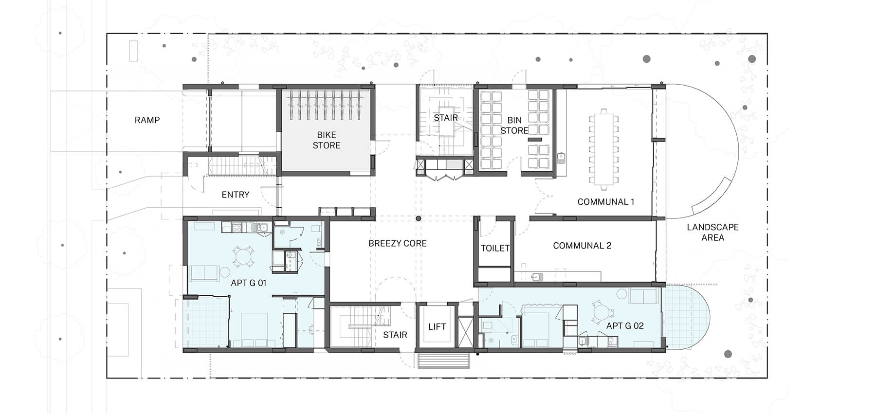
Floor plans

Explore the floor plan layouts. Refer to the pattern pack for more floor plan variations to suit your preferences.

Fixed and flexible features

Fixed features must be included in your planning application. Flexible features can be modified within agreed parameters.

Axonometric section of the Small Lot Apartments 04 Neeson Murcutt Neille
Tap to explore
  • Fixed features

    • Enduring facade

      The robust, rectilinear façade provides a refined material finish in a choice of pink or white with pops of colour on each balcony.  

    • Breezy circulation core

      The breezy circulation core anchors the apartments on each floor and optimises light and air flow on each level. 

    • Welcoming entry

      The pedestrian entry to the building is highlighted with a coloured brick pathway and awning. 

    • End of trip facilities

      Secure bike storage and 2 communal rooms on the ground floor are design features that also provide communal amenity for residents.

    • Communal open space

      The communal open space on the ground floor of the building supports landscaping and tree canopy and is 25% of overall site area.

  • Flexible features

    • Interchangeable layouts

      The efficient apartment layouts can be interchanged with many combinations to support a diversity of mixes and yields.

    • Coloured awnings

      The coloured awnings can be attached to each balcony to match the coloured soffit or just used at the front entry. 

    • Lot size

      Standard, narrow and narrow long plans available to suit minimum lot widths between 16.5–20.4m.

    • Parking and utilities

      Two parking options, including basement or on-grade are available.

    • AS 4299-1995 Adaptation

      Several apartments can be adapted to Australian Standard 4299-1995 – Adaptable housing.

Materials and character

The building uses a modular design with repeatable elements and interchangeable apartment layouts. Its compact form and open, breezy circulation core make it efficient to construct and suitable for modern methods of construction. This pattern is designed for a standard concrete construction and can be adapted to cross laminated timber or other innovative methods. The materials have been selected with embodied carbon in mind: the lightweight cladding can be a low-carbon magnesium oxide board and face bricks can incorporate reclaimed bricks where practical.

Street view of 5 storey apartment with white cladding and yellow awnings.

Lightweight cladding can be magnesium oxide board, CFC or pre grooved vertical board with yellow awnings and pavers.

Street view of 5 storey apartment with red brick and red awnings.

Primary material is red clay brickwork, with pink pavers and awning details.

Close up of apartment building and striped yellow awnings over balcony.

Provision of striped fabric awnings is optional.

Close up of entry into apartment building with yellow footpath and yellow awnings.

Footpath colour to match selected material palette.

About the architect

Neeson Murcutt Neille is an architecture practice recognised for design excellence. The practice work on a range of project types from bespoke houses to multi-unit housing and housing prototypes, education projects, tourism projects, public and community commissions, and adaptive reuse. Their work has been recognised locally and internationally through awards, publications, lectures and exhibitions.

For more of Neeson Murcutt Neille’s work, visit Neeson Murcutt Neille.

Monash Urban Lab provided design review and advice on this pattern and was part of the competition winning team. Find out more on Monash Urban Lab.

Meet the pattern book design team

Getting into the detail

Learn more about turning your pattern book project into reality with  guidance for designing your landscape and gaining fast-track planning approval.

Preview or purchase this pattern

View the pattern drawings at no cost to help you select the most suitable pattern for your project.

To use the pattern for your planning application, you must purchase the full suite of documents, accept the terms and conditions and reference your unique identification number. When you pay the fee, you will receive technical drawings in PDF and DWG formats, an editable design verification statement and your unique identification number.